
中央大通の夕焼け風景
有限会社素直
大阪市中央区本町1丁目7番1号
営業時間: 9:30〜17:00

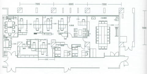
※貸事務所を借りる時は、最低限の広さを確保しましょう!
広いスペースになると、レイアウトイメージが沸きにくく、入居してからスペース足りなかった・・・と後悔することも。
事前にレイアウトまたは間仕切して使用するスペースなどは、プロの事務機屋さんに相談の上確認するようにして下さい。
当社では「貸事務所のレイアウトなどを専門に取り扱っている株式会社エース事務機さん」でのご紹介もさせて頂いておりますので
お気軽にお申し出下さいませ。
注1) 通常事務所内で必要な書棚やコピー機など、下記レイアウトには含まれておりますが業態により違いがございます。
注2) 貸室の室内形状により、使用出来るスペースに違いがございますので予めご了承下さい。
賃貸オフィス・貸事務所のご要望は本町にある素直まで、お気軽にお問合せをどうぞ。 TEL 06-6263-8500
賃貸オフィス・貸事務所のご要望は本町にある素直まで、お気軽にお問合せをどうぞ。 TEL 06-6263-8500
賃貸オフィス・貸事務所のご要望は本町にある素直まで、お気軽にお問合せをどうぞ。 TEL 06-6263-8500
賃貸オフィス・貸事務所のご要望は本町にある素直まで、お気軽にお問合せをどうぞ。 TEL 06-6263-8500
賃貸オフィス・貸事務所のご要望は本町にある素直まで、お気軽にお問合せをどうぞ。 TEL 06-6263-8500
賃貸オフィス・貸事務所のご要望は本町にある素直まで、お気軽にお問合せをどうぞ。 TEL 06-6263-8500






